11.12.2010

Floor Plan Friday

It's no secret that I am obsessed with floor plans.  I have looked at hundreds with dreams of one day using one of them to build my dream house.  I doubt that will ever happen but I can still look, window shopping if you will.  I've decided to start a new little series and share with you one of my favorites every Friday.

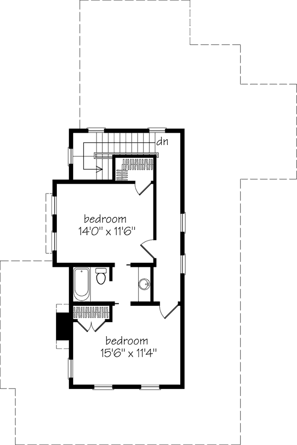
First up is from Southern Living and is called Turtle Lake Cottage

1871sf with 3 bedrooms and 2 1/2 bath.


    

Things I love!
  • Combined kitchen/dining but still separate from the living room
  • Screened porch (a must when living in the south)
  • No tub in the master bath
  • Jack and Jill bath upstairs
  • side entry through the laundry room (so convenient for bringing in groceries & dirty children)
Things I would change
  • I use to have a whole list but the more I look at it the more I like it the way it is.
This is a no nonsense house and is made to be lived in thoroughly.  It is super practical and functional but at the same time adorable.  I can see all of my stuff fitting in perfectly.  Now all I need is land and money.

I hope everyone has a fantastic weekend!  Chris is going to Auburn with his BFF to see the Georgia v. Auburn game (go dawgs!) so Claire and I will be bach'n it this weekend.

Happy Friday!
~Andrea

No comments:

Post a Comment